Trilocale in vendita

Parma, Via Fratelli Rosselli - San Leonardo
€ 129.000
3 locali 3 locali
65 Mq 65 Mq
1 bagno 1 bagno

Trilocale in vendita

Parma, Via Fratelli Rosselli - San Leonardo

Descrizione annuncio

INTERNA VIA SAN LEONARDO: la palazzina si trova a pochi passi da tutti i servizi della città e del quartiere ma in una via interna, silenziosa e tranquilla visto che è chiusa e defilata dal traffico.

Lo stabile è di struttura residenziale, con cortile condominiale ed è di piccole dimensioni, composta infatti da sole 6 unità abitative.

L’appartamento è libero su tre lati ed è sito al piano intermedio, questo ne favorisce un miglior isolamento per il riscaldamento dato che è termoautonomo con caldaia individuale.

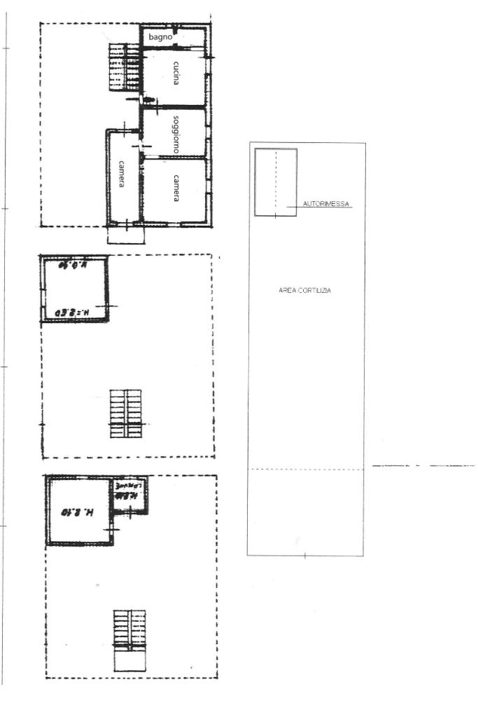
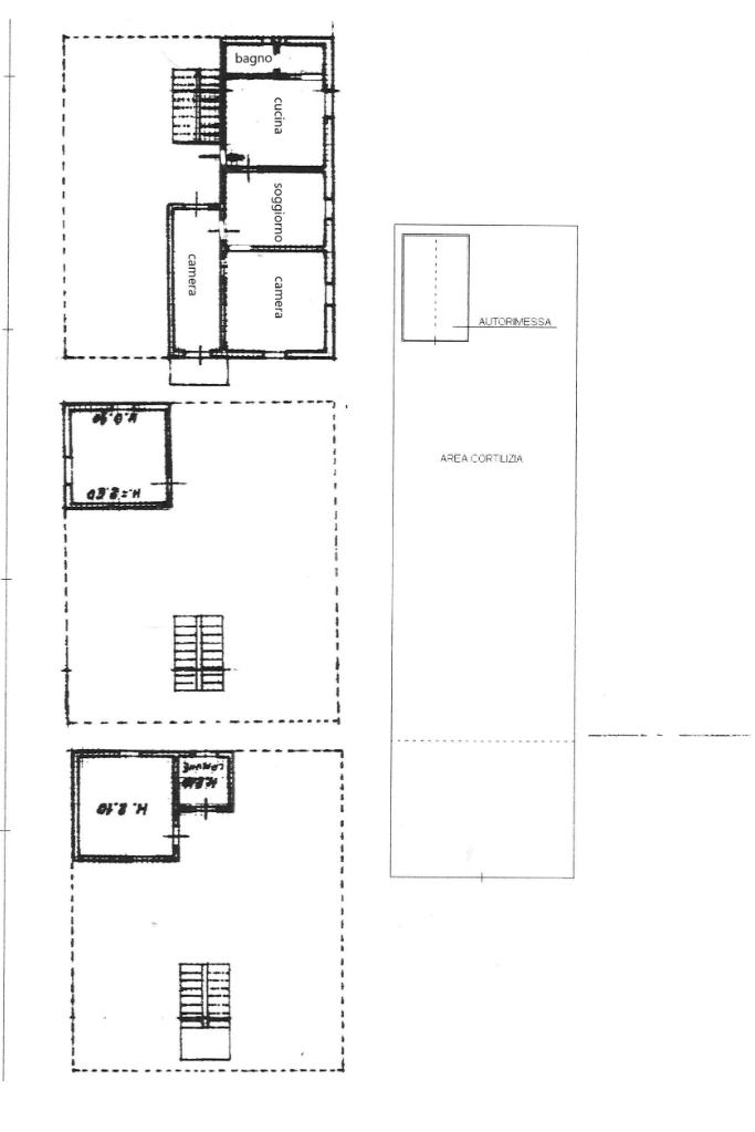
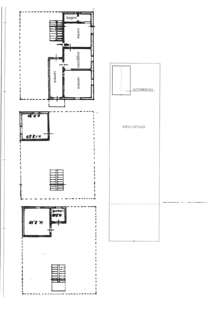
L’area di pertinenza è di circa 130 mq, adibita a giardino con alberi da frutto e, oltre al box auto già presente, può ospitare altre automobili, furgoni o camioncini, avendo un proprio cancello carraio privato.

La cucina è abitabile, spaziosa e comprensiva dell’arredo, capiente per tutta la famiglia o per ospitare amici, il soggiorno è fruibile per rilassarsi sul divano per guardare la TV.

La zona notte è composta da una comoda camera matrimoniale, quadrata e ampia e la cameretta è dotata dallo sfogo esterno che è il balcone sulla facciata della palazzina.

Il bagno è finestrato e dotato di tutti gli accessori, tra cui la vasca.

A completare il tutto vi sono gli accessori, composto da una grande cantina e il solaio, comodo da utilizzare come ripostiglio.

Questa soluzione è ideale per quelle persone che gradiscono la tranquillità di una via riservata e allo stesso tempo la comodità di tutti i servizi a portata di mano, che hanno necessità di un giardino per goderne con la propria famiglia o utilizzare l’area esterna per i mezzi della propria attività.

Mostra tutto

Nelle vicinanze

Trasporto pubblico Trasporto pubblico
stazione di Parma
stazione di Parma
780 m
v. San Leonardo v. Corini
v. San Leonardo v. Corini
160 m
v. San Leonardo
v. San Leonardo
190 m
Ricariche auto elettriche Ricariche auto elettriche
LIDL Via Venezia Parma
820 m
EnelX EVA+ Conad Parma
840 m
Eneldrive Stazione FS
850 m
Novotel Parma Centro
900 m
IrenGo European Food Safety Authority
1,0 Km
Scuole Scuole
Wall street english institute
1,2 Km
Istituto Tecnico Economico G. B. Bodoni
1,4 Km
Istituto Tecnico Agrario & Economico
1,5 Km
Scuole
1,5 Km
Università degli Studi di Parma
1,5 Km
Farmacia Farmacia
San Martino
450 m
Farmacia Venezia
850 m
Farmacia Bottego
950 m
Mantovani
1,2 Km
Farmacia Mentana
1,3 Km
Ospedali Ospedali
Ausl
860 m
Casa della Salute Parma Centro
1,2 Km
Gemini
1,4 Km
Pronto Soccorso Ostetrico
2,2 Km
Pronto Soccorso Pediatrico
2,2 Km
Supermercati Supermercati
Equ Discount
240 m
Interspar
430 m
Dìmeglio
490 m
Lidl
780 m
Penny Market
830 m
Negozi Negozi
SAn Leo - Gastronomia locale
110 m
Negozi
120 m
Antichi Sapori Campani
740 m
Mini Mix
1,1 Km
Antonia Fontana
1,1 Km
Bar Bar
Centauro
140 m
San Leonardo
160 m
Ombra di luna
440 m
francibar
480 m
Bar
640 m
Ristoranti Ristoranti
Ristoranti
100 m
La tirolese
370 m
Ristorante Porta San Barnaba
880 m
"Perlage"
940 m
Trattoria - Imelde
960 m
Mostra tutto

Caratteristiche

Rif.:
61117493
Piano:
1 di 3 (Piano medio)
Box:
1
Balconi:
1
Camere da letto:
2
Arredamento:
Parziale
Mostra tutto
Prezzo Prezzo
€ 129.000
Rata mutuo Rata mutuo
€ 602 / mese
Spese annue Spese annue
€ 600
Proponi il tuo prezzoProponi il tuo prezzo

Classe Energetica

G
G
G
G
G
G
G
G
G
EP globale non rinnovabile:
337.49 kW h/m² anno
EP globale rinnovabile:
337.49 kW h/m² anno
EP invernale del fabbricato:
EP estiva del fabbricato:
Anno di costruzione:
1967
Riscaldamento:
Autonomo
Tipo impianto:
A radiatori
Tipo alimentazione:
Metano

Ti interessa visionare l'immobile?

Fissa un appuntamento  Fissa un appuntamento

Richiedi informazioni

Clicca su Leggi per aprire l'informativa
* Questi campi sono obbligatori

Calcola il tuo mutuo

Semplice e senza impegno
Anticipo

( % )
Mutuo

( % )

pochi semplici passi

inserisci i tuoi dati
Questionario completato
Grazie per aver richiesto un appuntamento senza impegno con un nostro Consulente del Credito e Assicurativo.

Hai inserito correttamente tutti i dati necessari e a breve riceverai una e-mail con un link da convalidare per inviare i tuoi dati.
Affiliato
Diadema Srls
Via Trento, 46/B 43122 Parma (PR)

Il nostro staff


  • Gianni Esposito
    Affiliato

  • Gian Jowel De Jesus
    Collaboratore

  • Alessandra Riispoli
    Coordinatrice

  • Denise Speranza
    Collaboratrice
Via Trento, 46/B 43122 Parma (PR)
Zona: Quartiere San Leonardo - Stazione - Eurotorri
Mostra su mappa
Orari: dal lunedì al venerdì 09,00 - 13,00/15,00 - 20,00; sabato chiusura alle 18,00.
Affiliato
Diadema Srls
Via Trento, 46/B 43122 Parma (PR)

2026 Tecnocasa Franchising S.p.A. - P. IVA 08365160152 - Via Monte Bianco 60/A 20089 Rozzano (MI). Ogni agenzia ha un proprio titolare ed è autonoma. Privacy policy | Policy utilizzo | Cookie policy